파주신축빌라[분양가전화문의][복층&…
간편회원은 볼 수 없습니다.
회원정보를 입력해주세요.

회원정보 수정
신고하기

매물 번호 : 10768

상세설명

 


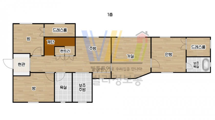
파주신축빌라 현장은 단지를 이루고 있는 현장으로 13개동으로 형성되어 있으며 총 104세대가 입주 가능한 복층+테라스 현장입니다. 도보 10분거리에는 경의중앙선이 지나는 운정역이 자리하고 있으며 추후 운정역 3호선 라인까지 개통 예정이라 개발 호재도 톡톡히 누려보실 수 있습니다. 야당역 인근으로 소소한 인프라들이 형성되어 생활에 편리함을 더해주는 복층+테라스 현장입니다. 

 

 

■ 파주신축빌라 현장은 경의중앙선 운정역이 가까워요.

■ 퀄리티 높은 복층 5룸으로 손볼곳이 없습니다.

■ 인프라는 더욱 탄탄해지겠네요

■ 13개동 대단지 현장입니다.

 

■ 파주신축빌라 현장은 주차는 야외 공간에 형성되어 있습니다.

 

매물 보호를 위하여 정확한 위치 대신 범위로 표시하니 정확한 위치는 문의해 주세요.
  • 대형마트
  • 편의점
  • 어린이집, 유치원
  • 학교
  • 은행
  • 문화시설
  • 공공기관
  • 관광명소
  • 병원

담당자

이정현 대표
네이버 '빌라정보통 카페'에서 5만명이 빌라에 대해 소통하고 있습니다.
010-8676-6026
myhouse4989
연락처를 남겨주시면 연락드리겠습니다.
개인정보 수집이용 동의 [보기]
  • 자료가 없습니다.
  • 자료가 없습니다.

인근 매물

부정클릭 감시중